20/06/2023
522-524 9th Street, Huntington, WV. Mixed-Use building located in the downtown business district, close to the Federal Courthouse and Cabell County Courthouse, as well as several local, regional and national banks, restaurants, shopping and entertainment. Building consists of main first floor office area, with mezzanine offices and a basement with additional office areas, storage areas, IT room and kitchen. Located on the second and third floors are four residential apartments (two apartments per floor, each apartment is fully furnished with two bedrooms and one bathroom). SEE BELOW FOR PHOTOGRAPHS AND DESCRIPTIONS.
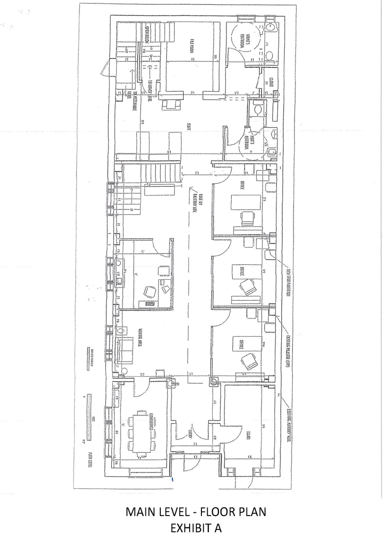
Mixed-Use Building: Commercial Office and Residential Apartments. Offices located on First Floor, Mezzanine and Lower Level. First floor has large reception work and seating areas, private offices, vault (storage), two restrooms and a conference room. The Mezzanine has private offices, a private single restroom, and a large private office or conference room. Lower level has kitchen, offices, DAR, IT rack with CAT wiring to all offices and reception area, as well as central music / intercom system. Can split out lower level and lease space separately. Beautiful office space, ready for tenant. Sign belt on front facade perfect for advertising business office. LEASE: Please contact for Leasing information. Tenant pays all utilities.
Upper floors consist of 4 residential apartment units. Each unit has two bedrooms, one bathroom; each apartment has separate central heat and air conditioning units; a utility room with washer & dryer; custom kitchens with granite countertops, stove, microwave, refrigerator and dishwasher; flooring is combination of hardwood, carpeting and ceramic tile. Monthly rental rate of $1,250.00 per unit, tenant responsible for electric, water and cable/internet services.























